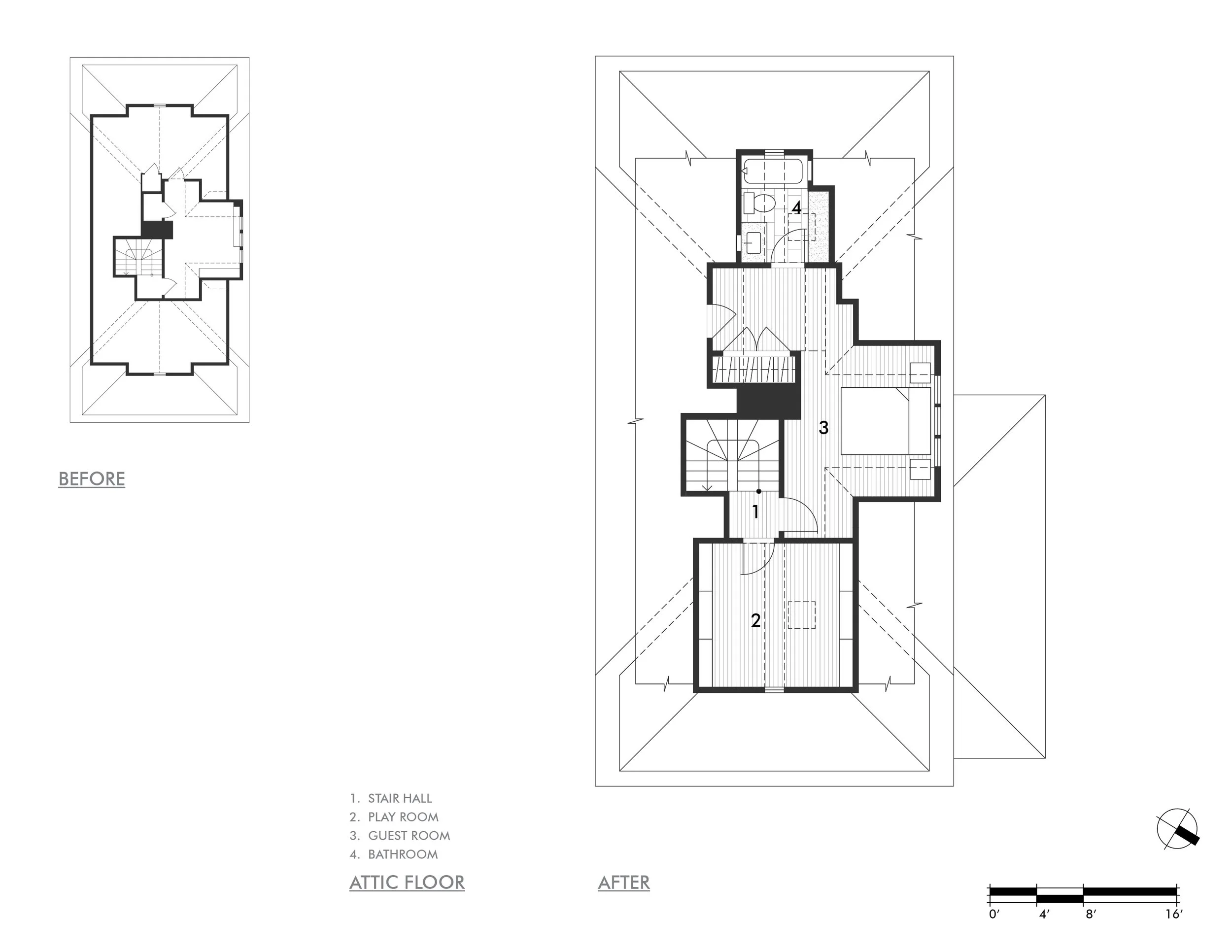
KITCHEN BUMP-OUT & HOUSE RENOVATION IN BELMONT, MA
This modest kitchen bump-out creates a bright and functional space for family cooking and casual entertaining, while providing much-needed visual and physical access to the beautifully wooded backyard.
Photography: Jared Kuzia

 
                 
                 
                 
                 
                 
                 
                 
                 
                 
                 
                